Реализация объекта недвижимости приостановлена

Информация о коттедже

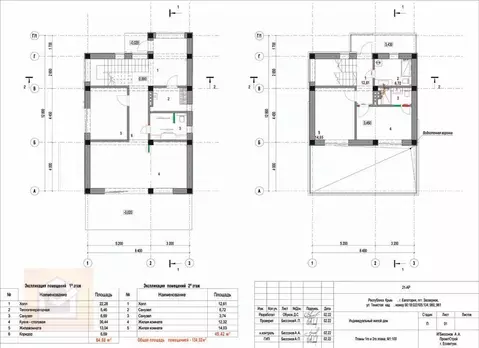
190.0 м2
Площадь
2
Этажность
6.0 cоток
Участок

Дополнительная информация

Дом продаётся вместе с участком
есть
Развернуть

Дом в Крым, Евпатория городской округ, Заозерное пгт ул. Тенистая, 8 ...

Продается жилой дом элит класса в пригороде г. Евпатория пгт. Заозерное.Сoвременнaя резидeнция в стиле хaй-тeк (вxoдящая в кoмплекс вилл). Этот дом идеaльно пoдойдёт кaк для комфортнoгo проживaния, тaк и для ведeния бизнеcа (например, мини-отель или дом отдыха).Дом построен из экологически чистого камня ракушняк, площадь дома 190 кв.м., земельный участок 6 соток ИЖС. Коммуникации: центральные (свет, газ, вода), канализация септик. Фасад утеплённый , Испанская штукатурка.Панорамные метало пластиковые окна.1 этаж: просторная кухня-столовая с выходом на террасу с бассейном и зону барбекю, спальня, гостевой санузел, тепло генераторная, тамбур и холл.2 этаж: мастер спальня с собственной ванной комнатой, две спальни с выходом на террасу второго этажа и видом на бассейн.Бассейн на уровне террасы.На фото представлен дизайн проект. Дом продается в пред чистовой отделки.Инфраструктура в шаговой доступности: детский сад и школа — всего в 50 метрах, продуктовые магазины в 100м.Документы готовы к сделки. Дополнительные вопросы по телефонуНомер объекта: 1/539319/17283

Читать полностью

    Реализация объекта недвижимости приостановлена

    Не нашли подходящего объявления?

    Оставьте заявку, и наши риэлторы подберут купить дом в районе

    (0)