12 450 000 Р 153 400 $ или 133 300

Информация о квартире

57 м2
Площадь
38 м2
Жилая
14 м2
Кухня
2
Комнаты
8
Этаж
9
Этажность
Развернуть
Агент
+7 (938) 524-76-92
Начать чат с агентом

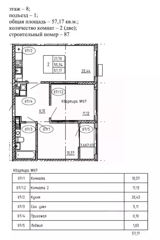
2-комнатная квартира: Алушта, Ялтинская улица, 20 (57.17 м)

В продаже (переуступка) 2к.квартира с раздельными комнатами и балконом. Общая площадь 57,17 кв.м., гостиная 22.44 кв.м., 1 комната 11 кв.м., 2 комната 12 кв.м, большая застекленная лоджия 3. 66 квм., установлен двухконтурный котёл. Сдача дома запланирована до конца 2026 года. На территории ЖК будет новый детский сад. На прилегающей территории обустроены безопасные детские и спортивные площадки для разных возрастных групп. Неоспоримым преимуществом дома является ровный рельеф придомовой территории. Во дворе детская площадка, вековые кипарисы, всегда свободные места для парковки автомобиля. В шаговой доступности находятся МОУ школа № 3 им. А. Н. Крисанова г. Алушты, Детский сад № 8 Светлячок, Продуктовый рынок, магазины ПУД и Яблоко, остановки общественного транспорта в ста метрах от дома. Квартира отлично подойдет, как для собственного проживания так и для сдачи в аренду. Этот район соответствует всем традиционным представлениям о жизни в городе-курорте. Еще один значимый плюс микрорайона – хорошая экология, высокая озелененность и транспортная доступность моря. Звоните, оперативно организуем показ и выход на сделку.Номер объекта:Код пользователя: 98746Номер в базе:

Читать полностью

    Для того, чтобы купить двухкомнатную квартиру по адресу: Алушта, ул. Ялтинская, 20, позвоните по телефону +7 (938) 524-76-92. Торопитесь! Объявление №30094263191 о продаже двухкомнатной квартиры опубликовано 16 марта 2026.

    Позвонить Написать
    12 450 000 Р153 400 $ или 133 300
    Агент
    +7 (938) 524-76-92
    Начать чат с агентом
    Похожие предложения
    2-к кв. Крым, Алушта ул. Ялтинская (57.17 м) - Фото 1
    2-к кв. Крым, Алушта ул. Ялтинская (57.17 м) - Фото 2
    2-комнатная квартира, общая площадь 57м², кухня 14м²

    В продаже (переуступка) 2к.квартира с раздельными комнатами и балконом. Вид из окон на зеленую зону и горы. Фото из окон именно этой квартиры. Общая площадь 57,17 кв.м., гостиная 22.44 кв.м., 1 комната 11 кв.м., 2 комната 12 кв.м, большая застекленная...
    • 57 м²
    • 2-ком
    • 8/9 эт.
    12 450 000 Р
    Агент
    +7 (918) Показать номер
    Посмотреть контакты
    2-к кв. Крым, Алушта ул. 50 лет Октября (45.1 м) - Фото 1
    2-к кв. Крым, Алушта ул. 50 лет Октября (45.1 м) - Фото 2
    2-комнатная квартира, общая площадь 45м², кухня 6м²

    В ПРОДАЖЕ КВАРТИРА НА ПОБЕРЕЖЬЕ ЧЕРНОГО МОРЯ К продаже представлена квартира в самом центре курортного города АлуштаКвартира расположена на первом этаже 5-ти этажного домаВ квартире выполнен качественный ремонт , что называется заходи и живи Электричество...
    • 45 м²
    • 2-ком
    • 1/4 эт.
    • панельный
    12 500 000 Р
    Агент
    +7 (918) Показать номер
    Посмотреть контакты
    1-комнатная квартира, общая площадь 34м², кухня 10м²

    Продается просторная однокомнатная квартира площадью 34,2 м в современном жилом комплексе Престиж Алушта . Монолитный дом 2021 года постройки, что гарантирует надежность конструкции и соответствие современным стандартам строительства. Квартира отличается...
    • 34 м²
    • 1-ком
    • 1/17 эт.
    12 000 000 Р
    Агент
    +7 (918) Показать номер
    Посмотреть контакты
    3-к кв. Крым, Алушта ул. Ленина, 46 (56.4 м) - Фото 1
    3-к кв. Крым, Алушта ул. Ленина, 46 (56.4 м) - Фото 2
    3-комнатная квартира, общая площадь 56м², кухня 6м²

    Продам 3комнатную квартиру в центре города. Второй этаж дома из инкерманского камня, центральное отопление, установлена газовая колонка. Состояние хорошее, сохранен паркет.До моря около 7 минут пешком. Рядом вся необходимая инфраструктура: магазины, транспорт,...
    • 56 м²
    • 3-ком
    • 2/5 эт.
    • панельный
    12 000 000 Р
    Агент
    +7 (918) Показать номер
    Посмотреть контакты
    3-к кв. Крым, Алушта ул. Ленина, 43 (57.0 м) - Фото 1
    3-к кв. Крым, Алушта ул. Ленина, 43 (57.0 м) - Фото 2
    3-комнатная квартира, общая площадь 57м², жилая 42м², кухня 8м²

    Арт.х комнатная квартира в центре г. Алушта по ул. Ленина, д 43.Лучший район города Квартира расположена на 5 этаже 5-этажного дома в середине дома.Выполнен ремонт в комнатах и санузле, везде установлены металлопластиковые окна.Все окна выходят во двор,...
    • 57 м²
    • 3-ком
    • 5/5 эт.
    • кирпичный
    12 400 000 Р
    Агент
    +7 (989) Показать номер
    Посмотреть контакты

    Не нашли подходящего объявления?

    Оставьте заявку, и наши риэлторы подберут квартиру в районе Алушты

    (0)