68 000 000 Р 957 400 $ или 822 900

Информация о квартире

199 м2
Площадь
170 м2
Жилая
20 м2
Кухня
2
Комнаты
2
Этаж
9
Этажность

Дополнительная информация

Тип дома
монолит
Развернуть
Агент
+7 (989) 281-48-13
Начать чат с агентом

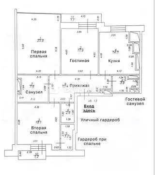
2-к кв. Крым, Алушта ул. Парковая, 5 (199.0 м)

В продаже современные и просторные апартаменты с авторским дизайнерским ремонтом в одном из лучших клубных домов Крыма Дача Доктора Штейнгольца . Комплекс находится в парковой и рекреационной зоне вблизи моря.Общая площадь апартаментов: 199 м.Планировка:коридоргардеробнаявзрослая спальнядетская спальнякухня-столовая-гостинаягостевой санузелосновной санузелтри балкона: с одного выход из кухни, со второго выход из детской и тритий из основной спальни.Ремонт выполнен из самых дорогостоящих и высококачественных материалов.О клубном доме Дача Доктора Штейнгольца :Дом оснащен своей собственной инфраструктурой: есть два круглогодичных бассейна (детский и взрослый), SPA-зoна, крытый паркинг, ресторан-музей, тренажёрный зал, детская площадка, космический научно-развлекательный центр, собственный пляж, круглосуточная охрана и ресепшен, которые готовы помочь в решении любого вопроса.Комплекс имеет свою собственную котельную и централизованную систему кондиционирования воздуха. Въезд на территорию дома только для жильцов и закрытый. В собственном парке дома растут уникальные деревья, которые были привезены из Никитского ботанического сада.В парке есть беседки и лавочки, где можно спокойно отдохнуть и насладиться красотой природы Южного берега Крыма.Документы готовы к сделке.Звоните, организуем показ в удобное для Вас время и проведем сделку без суеты и нервов апартаменты с ремонтом в Алуште, апартаменты на ЮБК, студии в новостройке, однокомнатные апартаменты, двухкомнатные апартаменты, трехкомнатные апартаменты, апартаменты премиум, апартаменты с ремонтом, апартаменты с видом на море, апартаменты Алушта, комплекс апартаментов

Читать полностью

    Для того, чтобы купить двухкомнатную квартиру по адресу: Алушта, ул. Парковая, 5, позвоните по телефону +7 (989) 281-48-13. Торопитесь! Объявление №30081072371 о продаже двухкомнатной квартиры опубликовано 26 мая 2026.

    Позвонить Написать
    68 000 000 Р957 400 $ или 822 900
    Агент
    +7 (989) 281-48-13
    Начать чат с агентом
    Похожие предложения
    Продается 3-комнатная квартира - Фото 1
    Продается 3-комнатная квартира - Фото 2
    3-комнатная квартира, общая площадь 172м², жилая 79м², кухня 43м²

    Продается квартира в районе Черёмушки, Москва Характеристики: Площадь: 172 м2 Высокие потолки создают ощущение простора и света Из-за уникальной планировки дома (внизу технический этаж) можно менять расположение мокрых зон в произвольном порядке Два...
    • 172 м²
    • 3-ком
    • 23/24 эт.
    67 000 000 Р
    Агент
    +7 (963) Показать номер
    Посмотреть контакты
    Продается 3-комнатная квартира - Фото 1
    Продается 3-комнатная квартира - Фото 2
    3-комнатная квартира, общая площадь 117м², жилая 60м², кухня 30м²

    Номер объекта: 554460. Продается уютная 3-х комнатная квартира в ЦАО, район Якиманка. До станции метро Шаболовская или Октябрьская можно дойти пешком за 10 минут, недалеко от Садового кольца. ЖК Созвездие Капитал-1 Застройщик Capital Group построен в...
    • 117 м²
    • 3-ком
    • 7/21 эт.
    69 000 000 Р
    Агент
    +7 (499) Показать номер
    Посмотреть контакты
    Продается 3-комнатная квартира - Фото 1
    Продается 3-комнатная квартира - Фото 2
    3-комнатная квартира, общая площадь 103м², жилая 69м², кухня 23м²

    Код объекта: 1584584. Продаётся просторная трёхкомнатная квартира в Москве, по адресу Береговой проезд, 1А. Уникальное предложение для тех, кто ценит комфорт и уют Год постройки дома 2020, материал постройки кирпич, перекрытия железобетонные плиты. В...
    • 103 м²
    • 3-ком
    • 5/28 эт.
    68 000 000 Р
    Агент
    +7 (909) Показать номер
    Посмотреть контакты
    4-к кв. Санкт-Петербург Костромской просп., 45 (144.1 м) - Фото 1
    4-к кв. Санкт-Петербург Костромской просп., 45 (144.1 м) - Фото 2
    4-комнатная квартира, общая площадь 144м², жилая 70м², кухня 35м²

    •1. - место расположения - в окружении Березового и яблоневого садов;•2. - клубный формат дома, состоящего из 14 квартир;•3. - просторный подземный паркинг;•4. - высокие потолки более 3,60 м.;•5. - высококачественные оконные системы;•6. - современные...
    • 144 м²
    • 4-ком
    • 4/5 эт.
    68 500 000 Р
    Агент
    +7 (981) Показать номер
    Посмотреть контакты
    Продается 3-комнатная квартира - Фото 1
    Продается 3-комнатная квартира - Фото 2
    3-комнатная квартира, общая площадь 98м², жилая 68м², кухня 15м²

    Код объекта: 1965676. Рекламный лид: Исключительная трёхкомнатная квартира с дизайнерским ремонтом, сауной и видом на парк. Премиум-класс в современном комплексе с охраняемой территорией ваш ключ к роскошной жизни в Москве. Описание квартиры - Просторная...
    • 98 м²
    • 3-ком
    • 15/21 эт.
    67 500 000 Р
    Агент
    +7 (499) Показать номер
    Посмотреть контакты

    Не нашли подходящего объявления?

    Оставьте заявку, и наши риэлторы подберут квартиру в районе Алушты

    (0)