Россия, Крым, Алушта, Профессорский Уголок мкр
13 266 950 Р 164 300 $ или 143 300

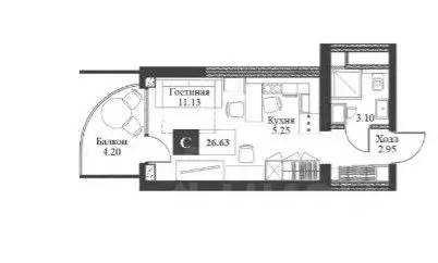
Информация о квартире

27 м2
Площадь
студия
Комнат
15
Этаж
20
Этажность
Развернуть
Агент
+7 (923) 057-76-15
Начать чат с агентом

Студия Крым, Алушта Профессорский Уголок мкр, Крымская Резиденция ...

Продаётся студия-апартаменты в строящемся доме (Корпус 6 Набоков ), срок сдачи: IV-кв. 2025, общей площадью 27.32 кв.м., на 15 этаже. Апартаменты с отделкой white box, панорамным остеклением. В 500 метрах от моря Главное преимущество комплекса — большие открытые террасы с видом на море, горы и город. Апарт-комплекс бизнес-класса Крымская Резиденция эксклюзивный проект, в максимальной степени воплощающий представления о комфортном отдыхе. Проектом предусмотрено строительство 9 корпусов со всеми необходимыми объектами инфраструктуры, возводимыми в три очереди строительства.Здания оригинальной треугольной формы обеспечивают равномерное наполнение каждых апартаментов солнечным светом. Точно выверенный угол поворота корпусов позволяет любоваться завораживающими панорамами Крыма.Благоустроенная территория:- Ограждение и круглосуточная охрана - Ландшафтный дизайн - Бассейн, детские и спортивные площадки, зоны отдыха Прекрасная инфраструктура:Расположение в сердце Южного берега Крыма открывает доступ к достопримечательностям: горам Демерджи, Чатыр-Даг и Кастель, водопаду Джур-Джур, Крымскому заповеднику и др.Неподалеку аквапарк, дельфинарий, аквариум и другие развлечения.Внутренняя инфраструктура включает фитнес и SPA с бассейном, рестораны и кафе, центр детского развития. Круглосуточный консьерж-сервис. Отличная транспортная доступность:- Всего 1 час езды от аэропорта в Симферополе. Новый терминал аэропорта с видовой террасой, ландшафтным парком, ресторанами и магазинами.- Современные дороги, курорт первый на пути, с открытием Крымского моста добираться в Алушту на авто стало проще- Рядом с комплексом пролегает Ялтинское шоссе- До автовокзала Алушты 3 минуты на авто или 15 минут пешком.Успейте приобрести шикарные апартаменты у моря на старте продаж, по самым выгодным ценам Все подробности по телефону, звоните * Стоимость действительна при 100 Оплате или Ипотеке.

Читать полностью
    Позвонить Написать
    13 266 950 Р164 300 $ или 143 300
    Агент
    +7 (923) 057-76-15
    Начать чат с агентом
    Похожие предложения в Алуште
    Студия Крым, Алушта ул. Западная, 4 (26.63 м) - Фото 1
    Студия Крым, Алушта ул. Западная, 4 (26.63 м) - Фото 2
    студия, общая площадь 26м², жилая 21м²

    Студия с дизайнерским ремонтом в апарт-комплексе Крымская Резиденция. На территории комплекса: аквазоны, СПА, кинотеатр, рестораны и площадки для отдыха. Отличный вариант как для собственного отдыха, так и для посуточной сдачи в аренду. Готовая управляющая...
    • 26 м²
    • студия-ком
    • 12/20 эт.
    • монолит
    12 000 000 Р
    Агент
    +7 (918) Показать номер
    Посмотреть контакты
    Студия Крым, Алушта  (35.62 м) - Фото 1
    Студия Крым, Алушта  (35.62 м) - Фото 2
    студия, общая площадь 35м²

    Продаётся студия в строящемся доме (Корпус 3), срок сдачи: III-кв. 2028, общей площадью 35.62 кв.м., на 6 этаже. Премиальный жилой комплекс Нега возводится в Профессорском уголке неподалёку от набережной, где снимался фильм Кавказская пленница . Комплекс...
    • 35 м²
    • студия-ком
    • 6/8 эт.
    13 449 731 Р
    Агент
    +7 (988) Показать номер
    Посмотреть контакты
    Студия Крым, Алушта  (35.62 м) - Фото 1
    Студия Крым, Алушта  (35.62 м) - Фото 2
    студия, общая площадь 35м²

    Продаётся студия в строящемся доме (Корпус 3), срок сдачи: III-кв. 2028, общей площадью 35.62 кв.м., на 3 этаже. Премиальный жилой комплекс Нега возводится в Профессорском уголке неподалёку от набережной, где снимался фильм Кавказская пленница . Комплекс...
    • 35 м²
    • студия-ком
    • 3/8 эт.
    12 769 973 Р
    Агент
    +7 (988) Показать номер
    Посмотреть контакты
    Студия Крым, Алушта  (35.22 м) - Фото 1
    Студия Крым, Алушта  (35.22 м) - Фото 2
    студия, общая площадь 35м²

    Продаётся студия в строящемся доме (Корпус 3), срок сдачи: III-кв. 2028, общей площадью 35.22 кв.м., на 4 этаже. Премиальный жилой комплекс Нега возводится в Профессорском уголке неподалёку от набережной, где снимался фильм Кавказская пленница . Комплекс...
    • 35 м²
    • студия-ком
    • 4/8 эт.
    12 888 608 Р
    Агент
    +7 (988) Показать номер
    Посмотреть контакты
    1-к кв. Крым, Алушта пер. Братский (36.71 м) - Фото 1
    1-к кв. Крым, Алушта пер. Братский (36.71 м) - Фото 2
    1-комнатная квартира, общая площадь 36м², жилая 11м², кухня 16м²

    Элегантный жилой комплекс ЛАСКА создан специально для тех, кто влюблен в жизнь. Он расположен в одном из самых живописных уголков Крыма, что дарит его жителям привилегию ежедневно наслаждаться первозданной красотой природы. Прочувствуйте красоту момента...
    • 36 м²
    • 1-ком
    • 2/4 эт.
    13 697 000 Р
    Агент
    +7 (932) Показать номер
    Посмотреть контакты

    Не нашли подходящего объявления?

    Оставьте заявку, и наши риэлторы подберут квартиру в новостройке в районе Алушты

    (0)