Россия, Крым, Алушта, На Фонтанке жилой комплекс

Реализация объекта недвижимости приостановлена

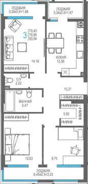
Информация о квартире

72.0 м2
Площадь
3
Комнаты
2
Этаж
8
Этажность
Развернуть

3-к кв. Крым, Алушта На Фонтанке жилой комплекс (72.6 м)

Продаётся 3-комнатная квартира в строящемся доме (Корпус 8), срок сдачи: I-кв. 2026, общей площадью 72.6 кв.м., на 2 этаже. Жилой комплекс На Фонтанке в городе Алушта на улице Багликова.

Читать полностью

    Реализация объекта недвижимости приостановлена

    Не нашли подходящего объявления?

    Оставьте заявку, и наши риэлторы подберут квартиру в новостройке в районе Алушты

    (0)