Россия, Крым, Алушта, Профессорский Уголок мкр
15 690 973 Р 192 900 $ или 165 800

Информация о квартире

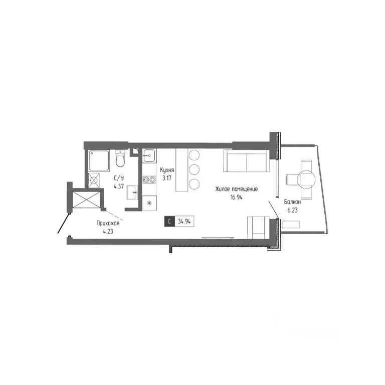
34 м2
Площадь
студия
Комнат
2
Этаж
20
Этажность
Развернуть
Агент
+7 (923) 057-76-15
Начать чат с агентом

Студия Крым, Алушта Профессорский Уголок мкр, Крымская Резиденция ...

Продаётся студия-апартаменты в строящемся доме (Корпус 7), срок сдачи: IV-кв. 2026, общей площадью 34.94 кв.м., на 2 этаже. Апартаменты с отделкой white box, панорамным остеклением. В 500 метрах от моря Главное преимущество комплекса — большие открытые террасы с видом на море, горы и город. Апарт-комплекс бизнес-класса Крымская Резиденция эксклюзивный проект, в максимальной степени воплощающий представления о комфортном отдыхе. Проектом предусмотрено строительство 9 корпусов со всеми необходимыми объектами инфраструктуры, возводимыми в три очереди строительства.Здания оригинальной треугольной формы обеспечивают равномерное наполнение каждых апартаментов солнечным светом. Точно выверенный угол поворота корпусов позволяет любоваться завораживающими панорамами Крыма.Благоустроенная территория:- Ограждение и круглосуточная охрана - Ландшафтный дизайн - Бассейн, детские и спортивные площадки, зоны отдыха Прекрасная инфраструктура:Расположение в сердце Южного берега Крыма открывает доступ к достопримечательностям: горам Демерджи, Чатыр-Даг и Кастель, водопаду Джур-Джур, Крымскому заповеднику и др.Неподалеку аквапарк, дельфинарий, аквариум и другие развлечения.Внутренняя инфраструктура включает фитнес и SPA с бассейном, рестораны и кафе, центр детского развития. Круглосуточный консьерж-сервис. Отличная транспортная доступность:- Всего 1 час езды от аэропорта в Симферополе. Новый терминал аэропорта с видовой террасой, ландшафтным парком, ресторанами и магазинами.- Современные дороги, курорт первый на пути, с открытием Крымского моста добираться в Алушту на авто стало проще- Рядом с комплексом пролегает Ялтинское шоссе- До автовокзала Алушты 3 минуты на авто или 15 минут пешком.Успейте приобрести шикарные апартаменты у моря на старте продаж, по самым выгодным ценам Все подробности по телефону, звоните * Стоимость действительна при 100 Оплате или Ипотеке.

Читать полностью
    Позвонить Написать
    15 690 973 Р192 900 $ или 165 800
    Агент
    +7 (923) 057-76-15
    Начать чат с агентом
    Похожие предложения в Алуште
    Студия Крым, Алушта ул. Сергеева-Ценского, 4В (32.9 м) - Фото 1
    Студия Крым, Алушта ул. Сергеева-Ценского, 4В (32.9 м) - Фото 2
    студия, общая площадь 32м², жилая 10м², кухня 10м²

    Алушта-Ривьера это не просто инвестиция в недвижимость, это инвестиция в стиль жизни и будущее.Мы предлагаем вам стать частью уникального проекта, который сочетает в себе преимущества курортной недвижимости и прибыльного бизнеса. Наша команда профессионалов...
    • 32 м²
    • студия-ком
    • 2/15 эт.
    • монолит
    15 161 109 Р
    Агент
    +7 (933) Показать номер
    Посмотреть контакты
    Студия Крым, Алушта Профессорский Уголок мкр, Крымская Резиденция ... - Фото 1
    Студия Крым, Алушта Профессорский Уголок мкр, Крымская Резиденция ... - Фото 2
    студия, общая площадь 34м²

    Продаётся студия-апартаменты в строящемся доме (Корпус 8), срок сдачи: IV-кв. 2026, общей площадью 34.56 кв.м., на 3 этаже. Апартаменты с отделкой white box, панорамным остеклением. В 500 метрах от моря Главное преимущество комплекса — большие открытые...
    • 34 м²
    • студия-ком
    • 3/20 эт.
    15 437 877 Р
    Агент
    +7 (923) Показать номер
    Посмотреть контакты
    Студия Крым, Алушта Профессорский Уголок мкр, Крымская Резиденция ... - Фото 1
    Студия Крым, Алушта Профессорский Уголок мкр, Крымская Резиденция ... - Фото 2
    студия, общая площадь 34м²

    Продаётся студия-апартаменты в строящемся доме (Корпус 8), срок сдачи: IV-кв. 2026, общей площадью 34.94 кв.м., на 2 этаже. Апартаменты с отделкой white box, панорамным остеклением. В 500 метрах от моря Главное преимущество комплекса — большие открытые...
    • 34 м²
    • студия-ком
    • 2/20 эт.
    15 447 242 Р
    Агент
    +7 (923) Показать номер
    Посмотреть контакты
    1-к кв. Крым, Алушта Профессорский Уголок мкр, Крымская Резиденция ... - Фото 1
    1-к кв. Крым, Алушта Профессорский Уголок мкр, Крымская Резиденция ... - Фото 2
    1-комнатная квартира, общая площадь 34м²

    Продаются 1-комнатные апартаменты в строящемся доме (Корпус 5 Айвазовский ), срок сдачи: IV-кв. 2025, общей площадью 34.64 кв.м., на 4 этаже. Апартаменты с отделкой white box, панорамным остеклением. В 500 метрах от моря Главное преимущество комплекса...
    • 34 м²
    • 1-ком
    • 4/20 эт.
    16 288 911 Р
    Агент
    +7 (923) Показать номер
    Посмотреть контакты
    Студия Крым, Алушта Профессорский Уголок мкр, Крымская Резиденция ... - Фото 1
    Студия Крым, Алушта Профессорский Уголок мкр, Крымская Резиденция ... - Фото 2
    студия, общая площадь 34м²

    Продаётся студия-апартаменты в строящемся доме (Корпус 4 Куприн ), срок сдачи: IV-кв. 2025, общей площадью 34.64 кв.м., на 5 этаже. Апартаменты с отделкой white box, панорамным остеклением. В 500 метрах от моря Главное преимущество комплекса — большие...
    • 34 м²
    • студия-ком
    • 5/20 эт.
    15 246 777 Р
    Агент
    +7 (923) Показать номер
    Посмотреть контакты

    Не нашли подходящего объявления?

    Оставьте заявку, и наши риэлторы подберут квартиру в новостройке в районе Алушты

    (0)