25 750 000 Р 321 000 $ или 279 900

Информация о коттедже

203 м2
Площадь
3
Этажность
1 cоток
Участок

Дополнительная информация

Дом продаётся вместе с участком
есть
Развернуть
Агент
+7 (918) 442-63-37
Начать чат с агентом

Дом в Крым, Алушта муниципальный округ, пос. Семидворье, Волна мкр 1 ...

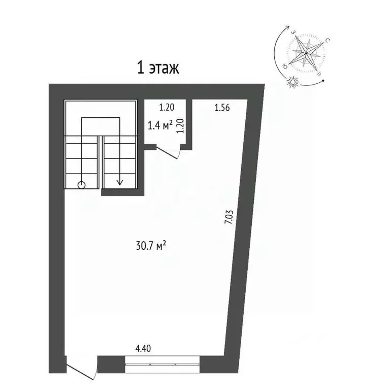
Объект 8049. Продается таунхаус на берегу моря (50 метров) в Крыму г.Алушта Достояние Алушты - море, горы, воздух, солнце Восточная набережная, кооператив Лазурный . Сделан качественный ремонт. Закрытый двор, свое паркоместо.Про таунхаус:- Трехэтажный, 2009 года постройки- Площадь: 203,9 м2- Высота потолка: 3 м- Отопление: теплый пол и кондиционер- Ремонт: качественный- Электричество: 15кВт- Водоснабжение: центральное- Канализация: септикПланировка таунхауса: - 1 этаж: кухня-студия 41 м2, спальня 12 м2. спальня 10 м2, санузел совмещен 6 м2, два подсобных помещения 7 и 3 м2- 2 этаж: отдельный вход с улицы, 1 гостиная 38 м2, балкон 12 м2, санузел 6 м2- 3 этаж: 2 спальни по 15 м2 с выходом на балкон из каждой спальни.- Подъезд асфальтированныйПро инфраструктуру:- территория закрытая, охраняется 24/7, детская площадка- рядом кафе, магазины, парковочные места- остановка общественного транспортаПро документы: один взрослый собственник, полная стоимость в договоре. Важно: можно купить таунхаус онлайн. Про показы: оперативно по предварительной договоренности.Позвоните, чтобы назначить просмотр

Читать полностью

    Для того, чтобы купить 3-этажный коттедж по адресу: Семидворье, позвоните по телефону +7 (918) 442-63-37. Торопитесь! Объявление №50016839908 о продаже трехэтажного коттеджа опубликовано 09 марта 2026.

    Позвонить Написать
    25 750 000 Р321 000 $ или 279 900
    Агент
    +7 (918) 442-63-37
    Начать чат с агентом
    Похожие предложения
    Дом в Крым, Алушта муниципальный округ, пос. Семидворье, Волна мкр 1 ... - Фото 1
    Дом в Крым, Алушта муниципальный округ, пос. Семидворье, Волна мкр 1 ... - Фото 2
    3 этажа, общая площадь 223м², участок 1 сотка

    Объект 8012. Продается таунхаус на берегу моря (50 метров) в Крыму г.Алушта Достояние Алушты - море, горы, воздух, солнце Восточная набережная, кооператив Лазурный . Сделан качественный ремонт. Закрытый двор, свое паркоместо.Про таунхаус:-Трехэтажный,...
    • 3 эт.
    • 223 м²
    • 1 сот.
    26 750 000 Р
    Агент
    +7 (918) Показать номер
    Посмотреть контакты
    Дом в Семидворье, микрорайон Волна, 1 (203.9 м) - Фото 1
    Дом в Семидворье, микрорайон Волна, 1 (203.9 м) - Фото 2
    3 этажа, общая площадь 203м², участок 1 сотка

    Объект №8049. Продается таунхаус на берегу моря (50 метров) в Крыму г.Алушта Достояние Алушты - море, горы, воздух, солнце Восточная набережная, кооператив Лазурный . Сделан качественный ремонт. Закрытый двор, свое паркоместо.Про таунхаус:- Трехэтажный,...
    • 3 эт.
    • 203 м²
    • 1 сот.
    26 750 000 Р
    Агент
    +7 (988) Показать номер
    Посмотреть контакты
    Дом в Крым, Алушта муниципальный округ, пос. Семидворье, Волна мкр 1 ... - Фото 1
    Дом в Крым, Алушта муниципальный округ, пос. Семидворье, Волна мкр 1 ... - Фото 2
    3 этажа, общая площадь 223м², участок 1 сотка

    Объект 8012. Продается таунхаус на берегу моря (50 метров) в Крыму г.Алушта Достояние Алушты - море, горы, воздух, солнце Восточная набережная, кооператив Лазурный . Сделан качественный ремонт. Закрытый двор, свое паркоместо.Про таунхаус:-Трехэтажный,...
    • 3 эт.
    • 223 м²
    • 1 сот.
    26 750 000 Р
    Агент
    +7 (918) Показать номер
    Посмотреть контакты
    Дом в Крым, Алушта муниципальный округ, пос. Семидворье 7 (136 м) - Фото 1
    Дом в Крым, Алушта муниципальный округ, пос. Семидворье 7 (136 м) - Фото 2
    3 этажа, общая площадь 135м², участок 7 соток

    Продается роскошный трехэтажный дом на первой линии с потрясающим видом на море и горы в п.Семидворье Дом площадью 124 кв.м. на участке 7,6 соток, с панорамными окнами и эксплуатируемой крышей 55,8 кв.м., предлагает свободную планировку на каждом этаже...
    • 3 эт.
    • 135 м²
    • 7 сот.
    26 500 000 Р
    Агент
    +7 (989) Показать номер
    Посмотреть контакты
    Дом в Крым, Феодосия наб. Черноморская (102 м) - Фото 1
    Дом в Крым, Феодосия наб. Черноморская (102 м) - Фото 2
    3 этажа, общая площадь 102м², участок 1 сотка

    Представляем вашему вниманию уникальную возможность приобрести трехэтажный дом общей площадью 102,3 кв.м. в черновой отделке, расположенный на ул. Черноморская набережная, прямо на первой линии у моря Этот объект недвижимости станет идеальным вариантом...
    • 3 эт.
    • 102 м²
    • 1 сот.
    25 000 000 Р
    Агент
    +7 (988) Показать номер
    Посмотреть контакты

    Не нашли подходящего объявления?

    Оставьте заявку, и наши риэлторы подберут купить дом в районе

    (0)