21 393 408 Р 264 500 $ или 229 100

Информация о квартире

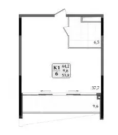
61 м2
Площадь
2
Комнаты
3
Этаж
7
Этажность
Развернуть
Агент
+7 (923) 057-45-70
Начать чат с агентом

2-к кв. Крым, Алушта муниципальный округ, пос. Бондаренково (61.44 м)

Продаются 2-комнатные апартаменты в строящемся доме (Этап 1 (Секции 1, 2)), срок сдачи: IV-кв. 2026, общей площадью 61.44 кв.м., на 3 этаже. Апартамент-комплекс ЧАЙКАасположен на первой линии у моря, что гарантирует беспрепятственный доступ к пляжу и захватывающие виды на водную гладь. Архитектурный стиль комплекса сочетает в себе современные линии и традиционные элементы, гармонично вписываясь в природный ландшафт. Апарт-комплекс комфорт-класса ЧАЙКА находится в поселке Бондаренково, в 10 км от Алушты и 20 км от Ялты, на Южном берегу Крыма. Климат здесь близок к субтропическому средиземноморскому, а значит, купальный сезон длится почти 6 месяцев. Местные бризы наполняют воздух озоном и делают его одним из лечебных факторов курорта.

Читать полностью
    Позвонить Написать
    21 393 408 Р264 500 $ или 229 100
    Агент
    +7 (923) 057-45-70
    Начать чат с агентом
    Похожие предложения
    Свободной планировки кв. Крым, Алушта муниципальный округ, пос. ... - Фото 1
    Свободной планировки кв. Крым, Алушта муниципальный округ, пос. ... - Фото 2
    общая площадь 53м², жилая 38м²

    Арт.БВА. Хотите жить в апартаментах своей мечты или выгодно инвестировать деньги? Предлагаем вашему вниманию элитные апартаменты на Южном берегу Крыма, расположенные в новом современном комплексе бизнес-класса в г. Алушта.Преимущества апартаментов:Премиальное...
    • 53 м²
    • 1/14 эт.
    • монолит
    21 408 126 Р
    Агент
    +7 (953) Показать номер
    Посмотреть контакты
    Свободной планировки кв. Крым, Алушта муниципальный округ, пос. ... - Фото 1
    Свободной планировки кв. Крым, Алушта муниципальный округ, пос. ... - Фото 2
    общая площадь 53м², жилая 38м²

    Арт.БВА. Хотите жить в апартаментах своей мечты или выгодно инвестировать деньги? Предлагаем вашему вниманию элитные апартаменты на Южном берегу Крыма, расположенные в новом современном комплексе бизнес-класса в г. Алушта.Преимущества апартаментов:Премиальное...
    • 53 м²
    • 2/14 эт.
    • монолит
    21 971 498 Р
    Агент
    +7 (953) Показать номер
    Посмотреть контакты
    Свободной планировки кв. Крым, Алушта муниципальный округ, пос. ... - Фото 1
    Свободной планировки кв. Крым, Алушта муниципальный округ, пос. ... - Фото 2
    общая площадь 53м², жилая 44м²

    Арт.БВА. Хотите жить в апартаментах своей мечты или выгодно инвестировать деньги? Предлагаем вашему вниманию элитные апартаменты на Южном берегу Крыма, расположенные в новом современном комплексе бизнес-класса в г. Алушта.Преимущества апартаментов:Премиальное...
    • 53 м²
    • 1/14 эт.
    • монолит
    21 408 126 Р
    Агент
    +7 (953) Показать номер
    Посмотреть контакты
    Свободной планировки кв. Крым, Алушта муниципальный округ, пос. ... - Фото 1
    Свободной планировки кв. Крым, Алушта муниципальный округ, пос. ... - Фото 2
    общая площадь 40м², жилая 32м²

    Арт.БВА. Хотите жить в апартаментах своей мечты или выгодно инвестировать деньги? Предлагаем вашему вниманию элитные апартаменты на Южном берегу Крыма, расположенные в новом современном комплексе бизнес-класса в г. Алушта.Преимущества апартаментов:Премиальное...
    • 40 м²
    • 9/14 эт.
    • монолит
    20 604 708 Р
    Агент
    +7 (953) Показать номер
    Посмотреть контакты
    1-к кв. Крым, Алушта муниципальный округ, пос. Бондаренково ул. ... - Фото 1
    1-к кв. Крым, Алушта муниципальный округ, пос. Бондаренково ул. ... - Фото 2
    1-комнатная квартира, общая площадь 61м², жилая 41м², кухня 5м²

    Арт.БВА. Новый уникальный Комплекс Апартаментов расположился на Южном берегу Крыма в г. Алушта. Этот уникальный проект сочетает в себе близость к природе, комфорт и современные решения для вашего идеального отдыха и жизни на море. Комплекс находится в...
    • 61 м²
    • 1-ком
    • 3/7 эт.
    • монолит
    21 393 408 Р
    Агент
    +7 (953) Показать номер
    Посмотреть контакты

    Не нашли подходящего объявления?

    Оставьте заявку, и наши риэлторы подберут квартиру в новостройке в районе

    (0)